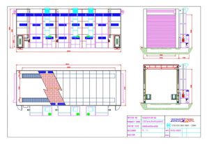
- Тип кабины: проходная
- Размеры (мм): 18000х6000х6000
- Ворота: рулонные с электроприводом
- Освещение: светодиодное
- Общая производительность ПВУ(м3/ч): 120 000
- Расположение ПВУ: справа
- Источник нагрева: газ
- Воздуховоды вытяжки: приямки в полу
-
Опции:
- • Лифт-площадки для маляра (3D) с электроприводом























