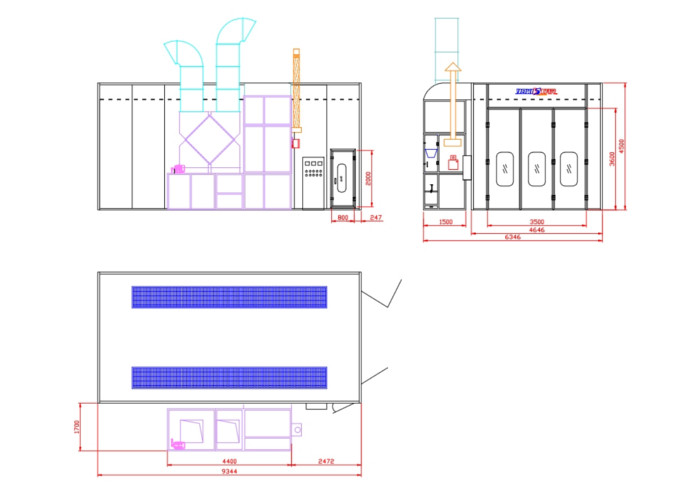
ОСК
- Тип кабины: тупиковая
- Размеры (мм): 7000x4500x3500
- Ворота: 3 створки
- Освещение: люминесцентное
- Общая производительность ПВУ(м3/ч): 30 000
- Расположение ПВУ: слева
- Источник нагрева: газ
- Воздуховоды вытяжки: приямки в полу
-
Опции:
- • Система рекуперации
ПП
- Тип кабины: тупиковая
- Размеры (мм): 6400x3550x2580
- Ворота: ПВХ-шторы
- Освещение: люминесцентное
- Общая производительность ПВУ(м3/ч): 18 000
- Расположение ПВУ: справа
- Источник нагрева: нет
- Воздуховоды вытяжки: приямки в полу
-
Опции:
- • Нет





















