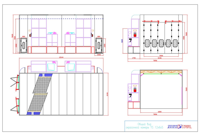
- Тип кабины: тупиковая
- Размеры (мм): 12000х6000х6000
- Ворота: 5 створок
- Освещение: люминесцентное
- Общая производительность ПВУ(м3/ч): 84 000
- Расположение ПВУ: слева
- Источник нагрева: дизель
- Воздуховоды вытяжки: в левой стене
-
Опции:
- • нет





















