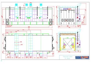
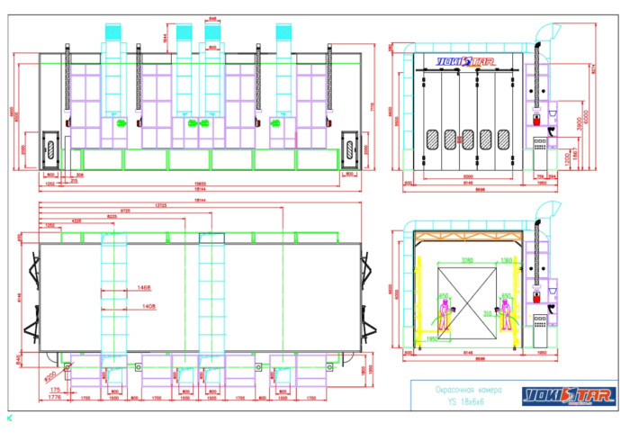
- Тип кабины: проходная
- Размеры (мм): 18000х6000х6000
- Ворота: 5 створок
- Освещение: люминесцентное
- Общая производительность ПВУ(м3/ч): 120 000
- Расположение ПВУ: слева
- Источник нагрева: дизель
- Воздуховоды вытяжки: в левой и правой стене
-
Опции:
- • Лифт-площадки для маляра (3D) с электроприводом
- • Рельсовый путь для проезда вагонов


























