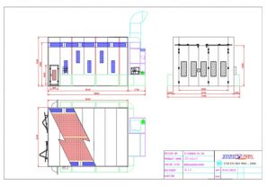
- Тип кабины: тупиковая
- Размеры (мм): 8000х6000х4500
- Ворота: 5 створок
- Освещение: люминесцентное
- Общая производительность ПВУ(м3/ч): 44 000
- Расположение ПВУ: справа
- Источник нагрева: нет
- Воздуховоды вытяжки: в левой и правой стене
-
Опции:
- • нет






















