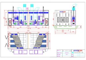
- Тип кабины: тупиковая с разделительными воротами
- Размеры (мм): 12000х4500х4000
- Ворота: 4 створки, разделительные- рулонные с электроприводом
- Освещение: люминесцентное
- Общая производительность ПВУ(м3/ч): 50 000
- Расположение ПВУ: справа
- Источник нагрева: дизель
- Воздуховоды вытяжки: приямки в полу
-
Опции:
- • Передаточная тележка































