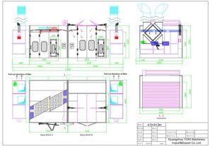
- Тип кабины: тупиковая с разделительными воротами
- Размеры (мм): 9000х4000х3000
- Ворота: 2 створки, 3 створки, разделительные- рулонные с электроприводом
- Освещение: люминесцентное
- Общая производительность ПВУ(м3/ч): 42 000
- Расположение ПВУ: справа и слева
- Источник нагрева: газ
- Воздуховоды вытяжки: в стенах по периметру
-
Опции:
- • Камера разделена по центральной оси
- • Пневматический люк для загрузки изделий краном в крыше камеры,
- • Система рекуперации
- • Система автоматического пожаротушения и сигнализации
- • Система обдува для уменьшения цикла сушки водоразбавляемых материалов установленная в углах камеры























