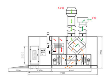
Рекуператоры


Система рекуперации тепла позволяет использовать тепло уже нагретого воздуха, участвовавшего в процессе окраски и выбрасываемого в атмосферу, для нагрева воздуха забираемого из атмосферы и имеющего меньшую температуру в холодное время года. В результате, температура воздуха, поступающего к теплообменнику группы притока, на выходе из рекуператора, значительно выше температуры атмосферного воздуха.
Основные преимущества использования системы рекуперации тепла:
- Возможность поддержания температуры воздуха участвующего в создании вертикально – нисходящего воздушного потока на уровне + 20 градусов, а по необходимости и большей температуры, при условии очень низкой температуре атмосферного воздуха в холодное время года.
- КПД системы рекуперации теплоты приблизительно равен 49%, это позволяет значительно экономить энергию, затрачиваемую на нагрев атмосферного воздуха забираемого для создания вертикально – нисходящего потока.





















